TUCKER-NORTHLAKE CID NEWS
Tucker-Northlake CID Works with MARTA on Ridership Opportunities
The Tucker-Northlake Community Improvement District (CID) has engaged with MARTA in reviewing all existing bus routes through the Tucker-Northlake CID. Jarrett Walker & Associates is assisting MARTA with a systemwide bus network redesign project focused on two...
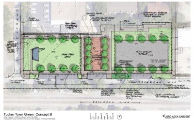
Tucker City Council Approves Purchase for Future Town Green
Last week the Tucker City Council unanimously approved the purchase of land on Railroad Avenue for a town green in Downtown Tucker. A place for concerts and other community events that will connect into the citywide trail network. The first concept for a town green...
New Streetlights Create Bright Future in Downtown Tucker
Thanks to the City of Tucker for their leadership in increasing their contribution to Streetscape Phase II, to include streetlights in Downtown Tucker. City funding made the addition of pedestrian streetlights a reality throughout the project area. The City has...
City and Tucker-Northlake CID Partner with ARC on Art in the Alleys Initiative
The City of Tucker in collaboration with the Tucker-Northlake Community Improvement District (CID) have engaged the Atlanta Regional Commission (ARC) to provide technical assistance to develop a plan for public art in the alleys in Downtown Tucker. The final...
Tucker-Northlake LCI Update Adopt by City of Tucker
Last night the Tucker's City Council unanimously adopted the Tucker-Northlake Livable Centers Initiative (LCI) five-year update. This document, funded by the Atlanta Regional Commission and the Tucker-Northlake CID, catalogs transportation, land use, and...
New Website to Support Trail Advocacy in Tucker
In an effort to increase public awareness and advocacy for trail development in Tucker, the Friends of Tucker Path have launched a new website. The site, tuckerpath.org will feature news updates on trail progress, information on upcoming meetings, and resources for...
Tucker-Northlake CID Sponsors New Organization Supporting Tucker Trail Plan
Since its inception the Tucker-Northlake CID has advocated for a multi-use trail network in Tucker and the surrounding community. Today that advocacy received a significant boost with the creation of the Friends of Tucker Path, a community group focused on advancing...
Express Lane Access at Northlake Pkwy Added to GDOT Plan
The Georgia Department of Transportation (GDOT) has updated the visualization for the I-285 Eastside Express Lanes Project. The plan now includes north-facing access to the express lane system at Northlake Pkwy. This addition is designed to reduce congestion, commute...
Tucker-Northlake CID Partners with DeKalb County on Hugh Howell Rd Sidewalk
We mean it when we say the Tucker-Northlake CID is part of a “walkable community.” The new sidewalk being installed on the south side of Hugh Howell Rd will bridge the 2,200 ft. gap between Lawrenceville Hwy and Tucker Industrial Rd. This joint project between the...
ULI Team Offers Recommendations to Tucker-Northlake CID for Downtown Tucker Alleys
Developed for the Tucker-Northlake CID by the 2020 Urban Land Institute (ULI) Atlanta Center for Leadership Mini Technical Assistance Panel, the Downtown Tucker Alley Activation study examines opportunities that can help transform long forgotten spaces into highly...
MARTA Suspends Majority of Routes in Tucker in Pandemic Response
Effective Monday April 20th, MARTA is suspending service on six of the seven bus routes operating within the Tucker-Northlake CID. Here is the list of changes: Route 30 "LaVista Rd" - SUSPENDED Route 75 "Lawrenceville Hwy" - SUSPENDED Route 121 "Memorial Dr / Hairston...
Governor Kemp Issues Shelter in Place Order – Allowing Business to Continue Under New Standards
Over the last 21 days Georgia Governor Brian P. Kemp has issued 19 executive orders related to COVID-19. Each one an incremental step to ensure Georgians have the best information, resources, and protections in place to maintain their day to day lives during this...











